Rzut nieruchomości

Profesjonalny rzut nieruchomości porządkuje ofertę i pomaga klientowi „zrozumieć” układ mieszkania lub domu w kilka sekund. Ty przesyłasz szkic lub istniejący rzut (odręczny, zdjęcie, skan, PDF), a nasi moderatorzy przygotowują estetyczny, czytelny rzut cyfrowy – gotowy do publikacji w ogłoszeniu, na stronie WWW i w materiałach PDF.

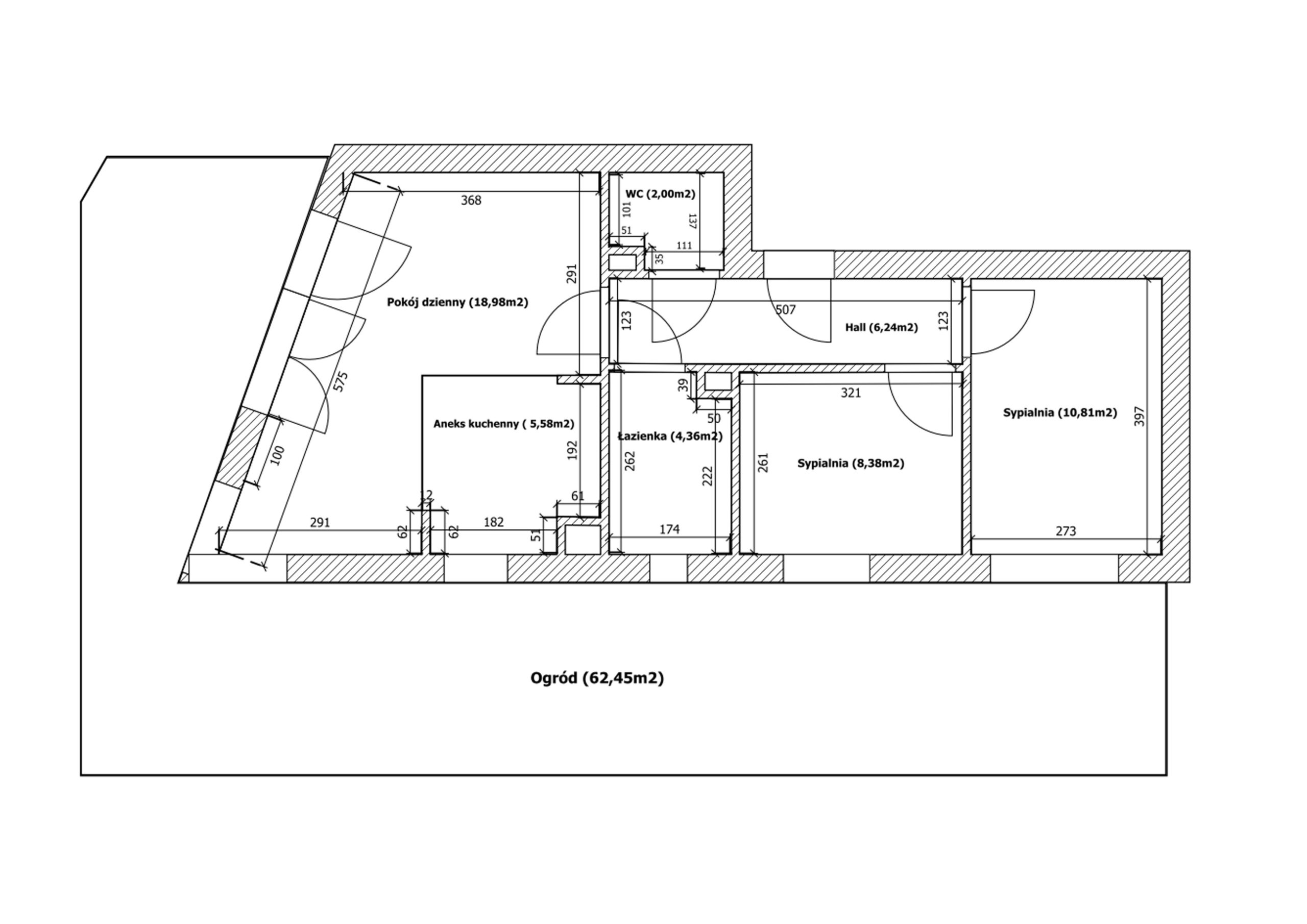
Warianty do wyboru: rzut uproszczony (bez wymiarów i opisów), rzut rozszerzony (z wymiarami i opisami) oraz rzut 3D.

Dlaczego warto?

Co otrzymujesz w ramach usługi rzutu nieruchomości?

Przygotowujemy rzuty cyfrowe na bazie przesłanych materiałów (odręczny szkic, zdjęcie kartki, skan projektu, rzut architektoniczny/projektowy).

Rzut uproszczony (2D)

  • czysty, minimalistyczny rzut bez wymiarów i opisów,
  • idealny do ogłoszeń, gdy zależy Ci na prostocie i estetyce,
  • świetnie działa jako „szybki podgląd” układu.

Rzut rozszerzony (2D z wymiarami i opisami)

  • wymiary (zgodnie z materiałem źródłowym lub Twoimi wytycznymi),
  • opisy pomieszczeń (np. salon, kuchnia, sypialnia, łazienka),
  • opcjonalnie: podstawowe informacje typu metraż pomieszczeń, kierunki świata, oznaczenia wejść.

Rzut 3D

  • czytelna wizualizacja układu w formie 3D (marketingowo „premium”),
  • wspiera wyobrażenie przestrzeni u klientów,
  • świetny do stron WWW, social mediów i ofert inwestycyjnych.

Jak wygląda proces przygotowania rzutu?

Wysyłasz nam:

  • albo rzut z dokumentacji architektonicznej.
  • szkic odręczny (zdjęcie telefonem),
  • skan lub zdjęcie rzutu,
  • plik PDF z projektu,

Materiał przesyłasz przez dedykowany system, do którego otrzymasz dostęp po kontakcie z nami. Możesz dopisać krótkie wytyczne, np. „podpisz pomieszczenia”, „dodaj wymiary”, „zrób wersję 3D”.

Nasi moderatorzy przenoszą rzut do formy cyfrowej i dbają o:

  • logiczny układ i przejrzyste linie.
  • czytelność i estetykę (pod ogłoszenia i materiały marketingowe),
  • spójność oznaczeń,

Dostajesz gotowy rzut w wybranym wariancie (uprościć/rozszerzyć/3D). Jeśli potrzebujesz drobnych poprawek (np. nazwy pomieszczeń), robimy je na podstawie Twoich uwag.

Ile kosztuje rzut nieruchomości?

Ceny są przewidywalne – zależą od wybranego typu rzutu.

Rzut uproszczony (2D)

29 zł netto / rzut


Wersja bez wymiarów i opisów.


Rzut rozszerzony

49 zł netto / rzut


Wersja z opisami i wymiarami.

Rzut 3D

19 zł netto / rzut


(wymagany rzut uproszczony lub rozszerzony)

    Bez ukrytych opłat i abonamentów – płacisz za konkretną, gotową prezentację oferty.

    Dla kogo jest nasza usługa rzutu nieruchomości?

    Ta usługa jest stworzona przede wszystkim dla:

    • agentów nieruchomości, którzy chcą podnieść standard ofert,
    • biur nieruchomości obsługujących większą liczbę ogłoszeń,
    • deweloperów prezentujących inwestycje i mieszkania pokazowe,
    • właścicieli, którzy sprzedają lub wynajmują i chcą wyglądać profesjonalnie.

    Jeśli zależy Ci na powtarzalnym standardzie materiałów i czasie – przejmujemy przygotowanie rzutu za Ciebie.

    Najczęściej zadawane pytania (FAQ)

    Jakie materiały mogę przesłać do przygotowania rzutu?

    Może to być szkic odręczny (zdjęcie telefonem), skan, rzut z projektu w PDF albo zdjęcie rzutu architektonicznego/projektowego.

    Czy możecie przygotować rzut, jeśli mam tylko odręczny szkic?

    Tak. Na podstawie odręcznego szkicu przygotujemy czytelny rzut cyfrowy – kluczowe jest, aby układ pomieszczeń był zrozumiały.

    Czym różni się rzut uproszczony od rozszerzonego?

    Uproszczony jest „czysty” i minimalistyczny (bez wymiarów i opisów). Rozszerzony zawiera opisy pomieszczeń i wymiary – świetny, jeśli chcesz dać klientowi maksimum informacji.

    Czy rzut 3D powstaje na podstawie tego samego materiału?

    Tak – bazujemy na Twoim rzucie/szkicu i przygotowujemy wersję 3D jako atrakcyjną wizualizację układu.

    W jakich formatach dostanę gotowe pliki?

    Standardowo przygotowujemy pliki do publikacji online i do materiałów PDF (np. PNG/JPG/PDF). Jeśli potrzebujesz konkretnego formatu – dopasujemy.

    Czy to jest dokumentacja projektowa?

    Nie. To rzut przygotowany na potrzeby marketingu i prezentacji oferty. Jeśli potrzebujesz dokumentacji do celów formalnych, potrzebne są osobne opracowania projektowe.

    Masz pytania?

    Jesteś zainteresowany naszymi wirtualnymi spacerami 360° z Wirtualnym Agentem?
    Skontaktuj się z nami – doradzimy, jak najlepiej wykorzystać tę usługę w Twoich ofertach.

    Masz pytania?

    +48 509 169 965

    kontakt@nieruchomosci.pro

    VIRTUAL REAL ESTATE Sp. z o.o.
    ul. Reja 12/210A,
    Rzeszów 35-211